
















Prachtige twee-onder-een-kap / Hob Villa’s volgens uniek Mediterraan design, 3 slaapkamers en 2 badkamers, solarium en groot gemeenschappelijk zwembad in Quesada
Quesada, Alicante
3
2
6 km
30 km
117 m2
Neem direct contact op
Omschrijving
Quesada is een charmant plaatsje op slechts een paar km van de Middellandse zee. Het is gebouwd rond de 18-hole golfbaan “La Marquesa”, welke een prachtige ligging heeft in een wat diepgelegen dal. Het klimaat is hier zeer gezond met name door de invloed van de zoutmeren. De gemiddelde jaarlijkse temperatuur is 20°C, met 320 dagen zon. Het is hier heerlijk genieten met op korte afstand de geweldig mooie stranden van Guardamar op slechts tien minuten afstand.
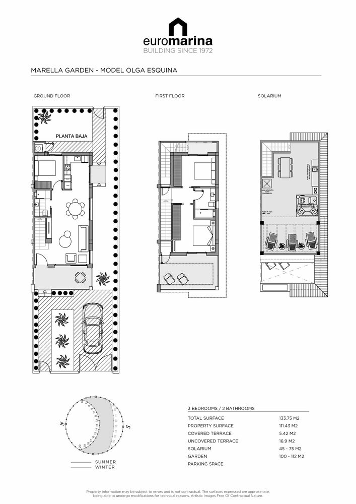
Deze zeer smaakvolle in moderne Mediterrane stijl vormgegeven twee-onder-een-kap / Hob Villa’s met 3 slaapkamers en 2 badkamers met vloerverwarming zijn gebouwd op een kleinschalige afgesloten urbanisatie. Het woonoppervlak is 117 m2. Op de begane grond is 1 slaapkamer en 1 badkamer, de 2 overige slaapkamers en de 2e badkamer bevinden zich op de 1e verdieping. De tuin aan de voor-, zij- en achterkant heeft een groot betegeld terras en aangrenzend aan 1 slaapkamer op de 1e verdieping is een terras van 17 m2. De Villa’s hebben allen een privé oprit en een solarium met een betonnen pergola. De grootte van het solarium varieert tussen de 45 m2 en 75 m2. De binnentuin met mooie beplanting heeft een groot gemeenschappelijk zwembad. Het kwaliteitsniveau van deze woningen ligt bijzonder hoog, er is gebouwd met hoogwaardige materialen en aandacht besteed aan de kleinste details waardoor de woningen een zeer luxe uitstraling hebben.
Video op verzoekKenmerken woning
- uniek design
- airco, pre-installatie
- rolluiken, elektrisch
- terras, 17 m2 op 1e verdieping
- solarium, 45m2 - 75m2
- zwembad, groot gezamenlijk
- oprit, prive
Omgeving en faciliteiten
Gemiddeld 2 ½ uur vliegen vanuit Nederland of België naar Alicante
Alicante luchthaven, 30 km 35 minuten
Golf, 3 km Rojales
Strand, 6 km Guardamar
Horeca, 2 km
Winkelcentrum, 18 km La Zenia Boulevard met 160 winkels.
Ziekenhuis, 11 km 15 minuten
Natuur, 3 km La Mata natuurreservaat
Geinteresseerd?
Neem direct contact op
Vul hieronder uw gegevens in en wij nemen contact met u op.
Vergelijkbare projecten
Op slechts 1 km afstand van het strand luxe half vrijstaande begane grond appartementen met 2 of 3 slaapkamers en 2 badkamers
2 - 3
2
1 km
35 km
95 m2
Woningen waarvan ook de garage inclusief berging mooi is afgewerkt
Op slechts 1 km afstand van het strand luxe half vrijstaande verdieping appartementen met 2 of 3 slaapkamers en 2 badkamers
2 - 3
2
1 km
35 km
95 m2
Woningen waarvan ook de garage inclusief berging mooi is afgewerkt
Op slechts 1 km afstand van het strand luxe half vrijstaande Penthouses met 2 of 3 slaapkamers en 2 badkamers
2 - 3
2
1 km
35 km
95 m2
Woningen waarvan ook de garage inclusief berging mooi is afgewerkt